Shaker Village Herb House, Sabbathday Lake
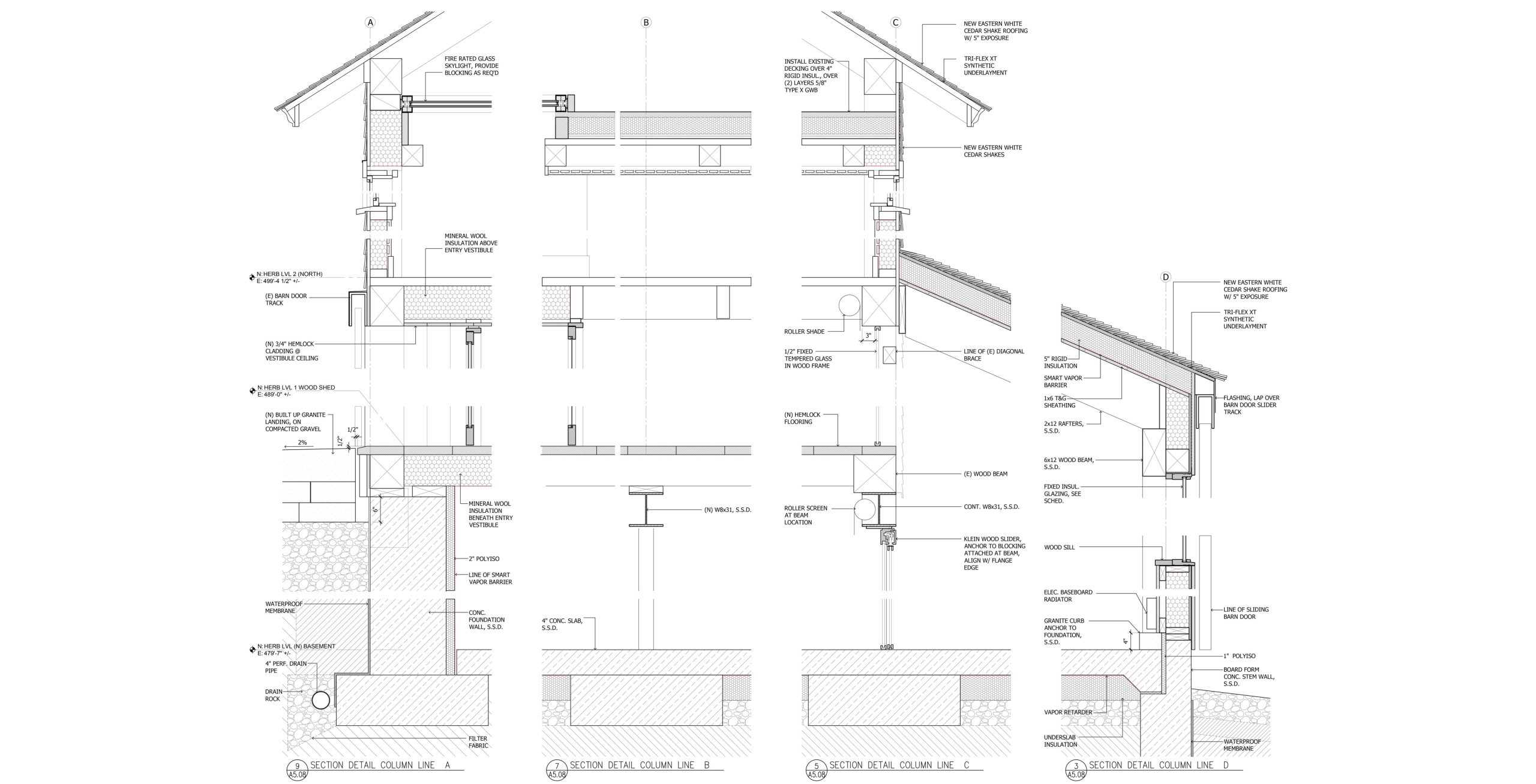
The Shaker Herb House is a lead project for the Village long range plan. It will be a home for dried herb processing, traditional craft classes and a commercial kitchen. In keeping with Shaker innovation, the Herb House will have the first elevator in New Gloucester. Our role has been one of listening and humility learning from the Shaker past to create a Shaker future.
TIMBER FRAMER & CONTRACTOR PRESERVATION TIMBER FRAMING
STRUCTURAL ENGINEER & SUSTAINABILITY CONSULTANT THORNTON THOMASETTI
MEP ALLIED ENGINEERING
CIVIL ENGINEER GORRILL PALMER
FIRE PROTECTION COMMERCIAL CONSTRUCTION CONSULTING INC.
FIRE ALARM MONITORING JOHNSON CONTROLS
CODE CONSULTANT REMMER CONSULTING
RENDERING HENRY GAO















